Duplex único a uma quadra da praia de Jurerê Tradicional, na rua das Moreias, travessa da charmosa rua César Nascimento. O prédio dá para a rua e também para uma das belas alamedas que garantem o respiro e o distanciamento de outras construções.
Esse belo e confortável apartamento duplex está pronto para você habitar – muito espaço, conforto e charme, mobiliado e equipado com todos eletrodomésticos, além de 7 aparelhos split.
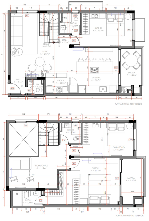
O duplex com 140 m² e 2 vagas de garagem tem as seguintes características:
Piso inferior
- ampla sala com cozinha integrada
- espaçosa varanda com churrasqueira vista mar
- área de serviço
- lavabo
- 1 suíte
Piso superior
- 1 quarto com banheiro
- espaço para sala de TV ou home office
- 1 suíte master com varanda vista mar
O condomínio é um detalhe a parte: linda vista mar do roof top com piscina, espaço gourmet, espaço aberto com churrasqueira e academia.




























